0

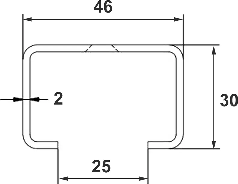
Top Guide Channel - to suit Mansion, Imperial and Majestic bottom rolling door systems

Available in - 2000, 3000, 4000 &6000mm lengths

Length:

See all Henderson in Top Guide Channel products

Category Products (Top Guide Channel)

0 ITEM
×