0

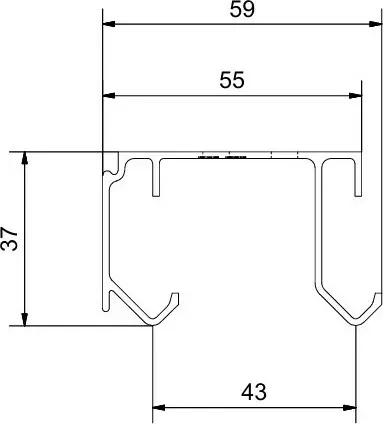
The Henderson Double Top wardrobe door system suits timber framed composite doors up to 45kg

Length:

0 ITEM
×